Information
この度、薩摩川内市中郷町に3つの”憧れ”が詰まった2階建てのモデルハウスをOPENしました!
多くのお客様のお声から、「憧れ」のふんだんに入れたリアルサイズのモデルが完成しました!
写真では分からない、実際に見学して分かる”体感”をご来場して感じてみてください♪

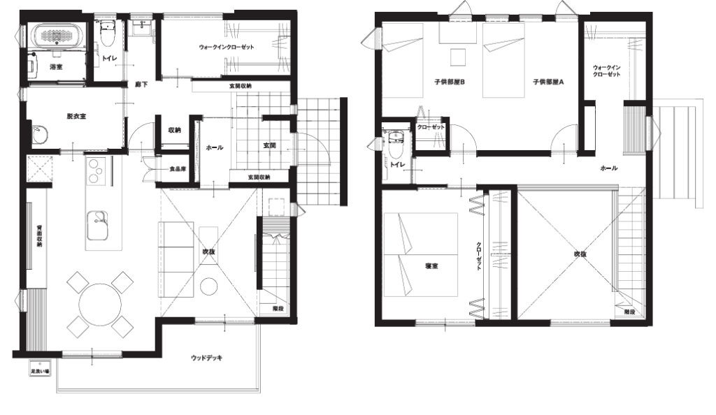
物件概要
| 間取り | 敷地面積 | 延床面積 | 駐車スペース |
| 3LDK | 227平米 (68坪) | 112平米 (34坪) | 3台 |
こんな方にオススメ
- お料理好きで、キッチン周りを充実させたい方
- 家事動線が良くて、家事ラクにこだわりたい方
- リビングは、マンションやアパートにない天井高の開放感のあるお家にしたい方
- たくさん収納できる場所を確保したい方
- お庭でBBQやお家キャンプができるような庭を確保したい方

物件の「見どころ」「体感すべき」ポイント
①木とグレー調を融合させ、機能も充実させたキッチン・ダイニングスペース

②リビングは勾配天井で2階とのつながりをもたせた開放的な空間

③最強家事ラク動線で、水回りも数十歩で完結(キッチン・脱衣室・浴室)

④どこを見てもオシャレでトレンドが盛りだくさんのデザイン






こちらの商品ブランドは【YUTORI CLASS】です
ご来場特典

ヤマサハウスとは?

ヤマサハウスの住まい
健康で快適な住まい、それは家族の心に『絆』が生まれる住まい。
「絆の家」は、鹿児島に暮らす人々と家づくりを通じて『絆』を結んできた
わたしたちヤマサハウスの、全ての「家づくり」に関わるコンセプトワードです。
川内支店の私たちが、お客さまに寄り添ってご案内させていただきます!

皆様のご来場をこころより、お待ちしております♪
見どころポイント
開催概要
来場のご予約
来場を事前にご予約いただきましたお客様には、
専任スタッフが待機してご案内させていただきます。
以下の来場予約フォームに必要事項を入力し送信してください。
※フォームからのご来場予約は、希望日前日の16時まで承っています。
(水・木は弊社休業日のため翌営業日以降のご対応となります)
当日ご来場予約のお客様へ
当日のご来場予約は、お電話でのみ承っています。
※展示場・モデルハウスの予約状況によっては、ご予約日時等を調整させていただく場合があります。予めご了承ください。




