Infomation
周辺施設
薩摩川内市天辰地区に「これからの時代を考えた一歩先行く家」が誕生します。
ローズガーデン平松分譲地内に
モデルハウスを公開中!
認定付き規格住宅KULASIC HOMEのNOIRになります。
暮らしやすさを形にした
住まいのポイント

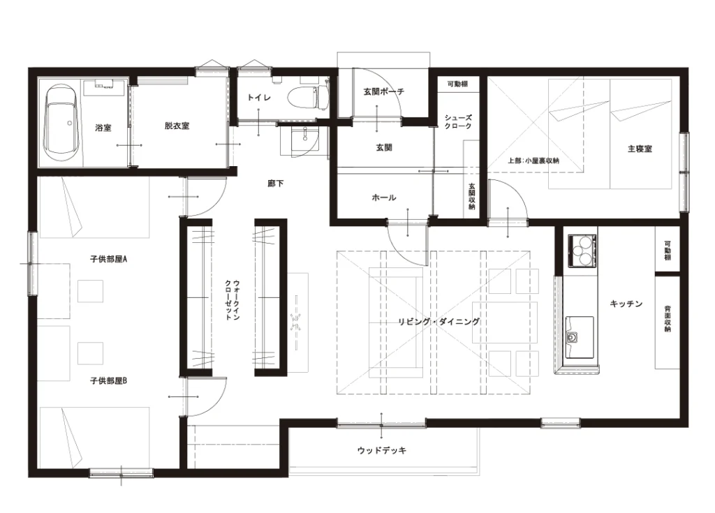
リビングを通って子ども部屋へ向かう動線により、キッチンにいても自然と「おかえり」が届く安心の間取りに。
また、WICを挟むことで家族の気配を感じつつプライベートも守れる空間が実現しました。

手元が隠れるキッチンで見た目はすっきり!シンク下にはゴミ箱を置けて調理中もスムーズ動けます。
さらにパントリーで食品ストックをたっぷり収納でき、空間全体がきれいに保てます。

水まわりの近くにWICを配置することで、洗濯物をすぐに片づけられます。
さらにWICの壁にTV配線を収納できるため、リビングまわりもすっきり整います。

ベージュの塗り壁が周囲のシックな住宅の中に映え、帰ってきた瞬間にすぐに“我が家だ”と分かる外観に。
たくさんの植栽が季節の移ろいを感じさせ、表情豊かな外まわりを楽しめます。

間取り図から読み解く暮らしやすさのヒント💡
・廊下が少なくワンフロアで暮らせる間取りだから、エアコン1台で夏も冬も快適に◎
空調効率が良く、光熱費も抑えられるためお財布にもやさしい暮らしが叶います。
・玄関近くに独立洗面台があるため、帰宅後すぐに手洗いできて衛生的です。
来客時も脱衣室を通らず案内できるので、生活感が見られない安心感も!
・玄関横の収納スペースには、靴はもちろんベビーカーや掃除用具までしまえるから、
室内に持ち込まず玄関まわりがいつもすっきり保てます。
“好きなものに囲まれた
暮らし”を体感!
〈NOIRノアール〉
かっこよくて清潔感あふれる上質なインテリア。
シックな色使いが印象的な外観のノアール。
内観は格子窓やアクセントタイルなどの
アンティークなインテリアでまとめられています。

ヤマサハウスの認定付き規格住宅
ヤマサハウスの標準仕様そのままに、
選べる110プランをご用意。
その中でも、敷地に合わせて厳選した
1プランをモデルハウスとして建設しました。

写真や文章だけでは伝わりきらない
使い勝手の良さや暮らしやすさの工夫は、
実際に見るとしっかり実感できます。
ぜひ現地で、その心地よさをご体感ください。

Spec
見学のご予約
見学を事前にご予約いただきましたお客様には、
専任スタッフが待機してご案内させていただきます。
以下の来場予約フォームに必要事項を入力し送信してください。
※フォームからのご来場予約は、希望日前日の16時まで承っています。
(水・木は弊社休業日のため翌営業日以降のご対応となります)
当日ご来場予約のお客様へ
当日のご来場予約は、お電話でのみ承っています。
※展示場・モデルハウスの予約状況によっては、ご予約日時等を調整させていただく場合があります。予めご了承ください。















