Infomation
周辺施設
価格改定しました!
物件概要
| 間取り | 敷地面積 | 延床面積 | 駐車スペース |
| 3LDK | 268.68平米 (81.27坪) | 77.84平米 (23.54坪) | 2台 |
子育てグリーン事業補助金 80万円対象物件!
※対象者には条件がありますのでご注意ください。


物件周辺施設
周辺には小学校やスーパー、クリニックも複数あるため、とても住みやすい環境が整っています!
・薩摩川内市立育英小学校 徒歩10分 750m
・セブン‐イレブン 徒歩7分 500m
・川内まきのせ泌尿器・腎クリニック 徒歩5分 350m
・医療法人こがひさお眼科クリニック 徒歩8分 550m
・ドラッグストアコスモス川内店 徒歩9分 600m
・コープ川内店 徒歩10分 750m







見どころポイント
ポイント① やわらかな光が差し込むリビング 🌞
テレビ横に設けられた窓からやわらかな日差しが入り、家族の時間をやさしく包み込みます。
昼間は照明に頼らずに過ごせる明るさで、休日にはソファでくつろぎながら、自然光とともにゆったりとしたひとときを楽しめます。
ポイント② 4帖の大容量ウォークインクローゼット 👗👞
4帖のWICを備え、衣類やバッグはもちろん、季節家電や布団までたっぷり収納可能。
居室やリビングがすっきり片付き、快適な暮らしを実現します。
お子さまの成長で荷物が増えても余裕のある収納力が心強いポイントです。
ポイント③ 家族とつながる広々オープンキッチン 🍳
リビングとつながるオープンキッチンは、料理をしながら会話や子どもの様子を楽しめる空間。
日々の家事をしながら自然とコミュニケーションが生まれ、家族が一緒に過ごす時間をより豊かにしてくれます。


ヤマサハウスの認定付き規格住宅
ヤマサハウスの標準仕様そのままに、選べる110プランをご用意。
その中でも、敷地に合わせて厳選した1プランをモデルハウスとして建設です。
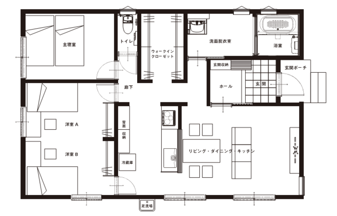
間取りの一例

ヤマサハウスとは?
私たちは、鹿児島の気候やライフスタイルに合わせた家づくりを大切にしています。
シンプルで洗練されたデザインと、住む人に寄り添う間取り提案で、心地よく長く住み続けられる住まいを実現。
デザイン性だけでなく、快適性や機能性も兼ね備えた“ちょうどいい暮らし”をお届けします。
見学会で、そのこだわりをぜひ体感してください。

ヤマサハウスの住まい
健康で快適な住まい、それは家族の心に『絆』が生まれる住まい。
「絆の家」は、鹿児島に暮らす人々と家づくりを通じて『絆』を結んできた
わたしたちヤマサハウスの、全ての「家づくり」に関わるコンセプトワードです。
川内支店の私たちが、お客さまに寄り添ってご案内させていただきます!

皆様のご来場を心よりお待ちしております♪
Spec
見学のご予約
見学を事前にご予約いただきましたお客様には、
専任スタッフが待機してご案内させていただきます。
以下の来場予約フォームに必要事項を入力し送信してください。
※フォームからのご来場予約は、希望日前日の16時まで承っています。
(水・木は弊社休業日のため翌営業日以降のご対応となります)
当日ご来場予約のお客様へ
当日のご来場予約は、お電話でのみ承っています。
※展示場・モデルハウスの予約状況によっては、ご予約日時等を調整させていただく場合があります。予めご了承ください。








